Продажа дома
Московская область, посёлок городского типа Нахабино, Советская 2-я улица, 5Б
- 482 м²
- Площадь
- 187.00 м²
- Жилая площадь
- 23.00 м²
- Площадь кухни
- 3
- Этажность
- 15 сот
- Площадь участка
53 000 000 ₽
109 959 ₽ за м²
ID объявления 12696556
Поделиться
Добавить в избранное
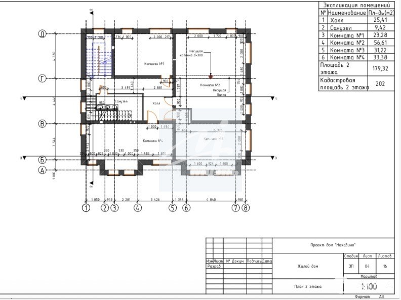
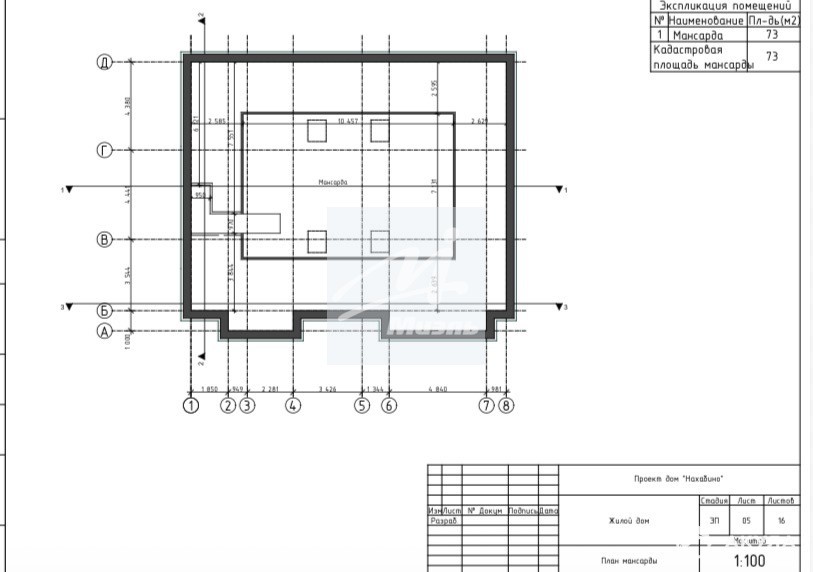
Современный удобный особоняк, рациональность планировки соответсвуетпожеланиям заказчика и прекрасно сочетается со стильным внешним видом.Дом имеет два основных входа с отдельными прихожими. В котельнуюпредусмотрен отдельный входс улицы. Также в кухне запроектирован оконныйпроем, с возможностью преобразования его в дверь с выходом на улицу.Здание имеет два полноценных этажа и один мансардный, частичноэксплуатируемый и утепленный.Основные конструкции и материалы:Основные технико-экономические показателиФундамент: свайно-ростверковый.Наружние несущие стены: керамические блоки толщиной 380мм.Внутренние несущие стены: Блоки толщиной 300мм.Несущие балки: согласно конструктивному проекту.Перекрытие пола 1 этажа и пола 2 этажа: армированные бетонные плиты.Перекрытие пола мансарды: по деревянным балкам.Перегородки: блоки толщиной 100мм.Окна: из ПВХ профилей с двухкамерными стеклопакетами.Лестницы 1 и 2 этажей: монолитные.Наружняя отделка: облицовочный кирпич коричневого и песочного цвета.Согласно чертежам фасадов.Общая площадь1 этажа217 кв.мОбщая площадь2 этажа202 кв.мОбщая площадьдома с мансардой492 кв.мПлощадьзастройки253 кв.мЖилой дом готов к проживанию, в пешей доступности от станции Нахабино, участок 15 соток огорожен и освоен, центральные коммуникации, вся городская инфраструктура в шаговой доступности.
Дата обновления: 14 апреля 2026